Leopoldskron | 3 Zimmer Penthousewohnung mit Gebirgsblick
6 weitere Bilder
Alles auf einen Blick
- Miete
- EUR 3.380,19
- Betriebskosten
- EUR 435,40
- Gesamtkosten
- EUR 3.815,59
- Heizkosten enthalten
- ja
- Energieausweis
- HWB 28
- Kaution
- 3 Bruttomieten
- Provision
- –
- Verfügbarkeit
- ab sofort
- Lage
- Nähe Leopoldskroner Weiher
- Zimmer
- 3
- Wohnfläche
- 102,43 m2
- Terrasse(n)
- 70,41 m2
- Keller
- ja
- Stellplatz
- pro TG-Stellplatz € 132,00 | pro Aussenstellplatz € 66,00
Kontakt
My Home Is My Home
Immobilien Wolfgang
Schiessendoppler & Partner
Fürbergstraße 42A
A-5020 Salzburg
Ilona Haubl
M +43 (0)664 44 24 446
ih@myhomeismyhome.com
Ganz allgemein
Diese Dreizimmer Penthousewohnung bietet exklusiven Wohnkomfort auch ca. 100 qm Wohnnutzfläche. Das zeigt sich am edlen Parkettboden, dem modernen Bad mit hochwertiger Sanitärausstattung, der perfekten Maßeinbauküche mit top E-Markengeräten und der angenehmen Fußbodenheizung. Der Wohn-/Essbereich mit Kachelofen ist großzügig und lichtdurchflutet. Von der Dachterrasse genießt man einen herrlichen Blick von der Festung bis zum Untersberg und ins Gebirge. Die Penthousewohnung ist klimatisiert und ein Aufzug füht von der Wohnung bis in die Tiefgarage.
Zum Raumprogramm
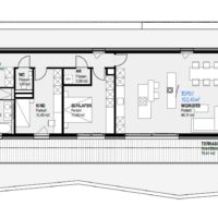
Vorraum, Treppenhaus, Aufzug, Abstellraum, Bad mit Wanne und Dusche, 2 Schlafzimmer mit Ausgang auf die Dachterrasse, offener Wohn-/Essbereich mit Maßeinbauküche, Ausgang auf die Dachterrasse.
Zur Lage
Der Stadtteil Leopoldskron vereint Lebensqualität mit Zentrumsnähe. Ein paar Schritte nach draußen und schon ist man an der Glan, am Leopoldskroner Weiher, Donnenbergpark oder Mönchsberg. Die grünen Seiten der Stadt sind also gleich um die Ecke und laden ein zu Spaziergängen oder Freizeitsport. Wohn- und Lebensqualität gehen hier Hand in Hand. Die Moosstraße liegt hier quasi vor der Haustüre. Das bedeutet perfekten Anschluss an das öffentliche Verkehrsnetz und nur wenige Minuten ins Stadtzentrum. Die fußläufige Infrastruktur sammelt Pluspunkte mit Nahversorgern, Geschäften, Restaurants, Cafés und allem, was man für den Alltag braucht.
Zur Ausstattung
- Maßeinbauküche mit Markengeräten
- Hochwertige Parkettböden
- Hochwertige Sanitärausstattung
- Fußbodenheizung
- Klimaanlage
- Elektrische Außenbeschattung
- Aufzug in die Wohnung
Zu den Besonderheiten
- Moderne Architektur
- Dachterrasse mit Panoramablick
- Ruhelage












